Opowieść Dom Pomocy Społecznej w Liskowie

  • Lokalizacja: Liskowo
  • Zakres: Projekt architektoniczny

Opis projektu

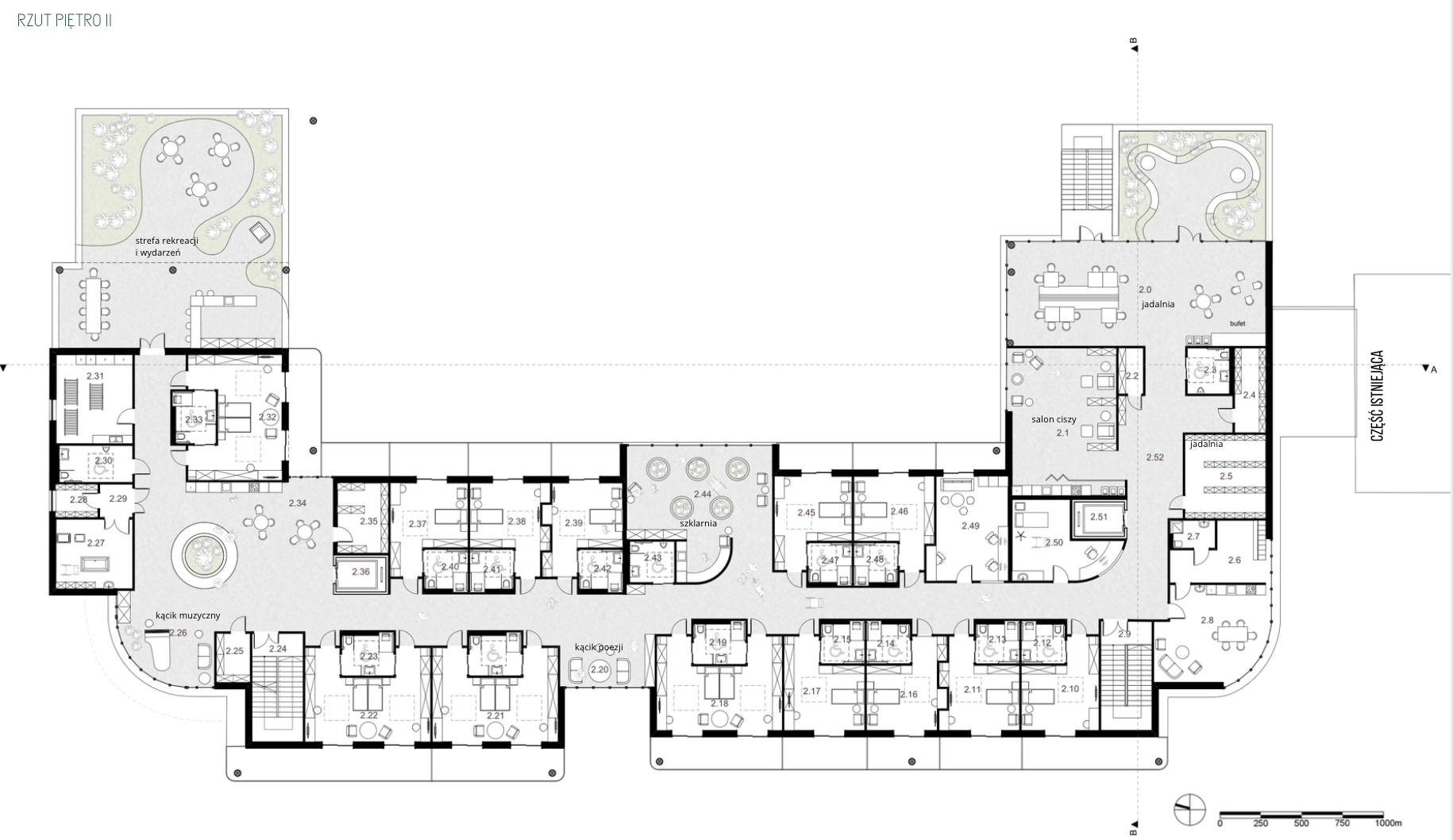
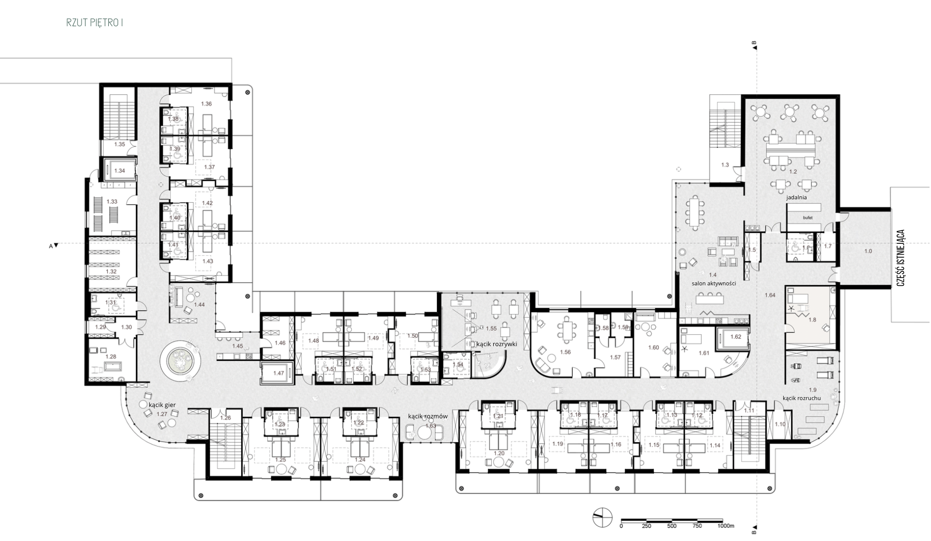
Opowieść Dom to budynek pomocy społecznej dla osób w podeszłym wieku, zlokalizowany przy istniejącym domu dziecka w Liskowie. Celem było stworzenie ośrodka, w którym miejsce opieki stawało się przestrzenią prawdziwego, rodzinnego życia. Architektura budynku została zaprojektowana tak, aby opowiadać historię codzienności – od wspólnych chwil w salonie, który stanowi serce całego założenia, po indywidualne momenty odpoczynku na tarasach i w intymnych zakamarkach założenia. Każdy mieszkaniec zyskuje nie tylko pokój, lecz także prywatną przestrzeń, w której może pielęgnować własny rytm dnia. Ważnym elementem projektu było odejście od stereotypowego obrazu domu pomocy społecznej. Zamiast długich, anonimowych korytarzy powstała sieć półprywatnych miejsc spotkań oraz tematycznych kącików, w których rodzi się serce domu. Opowieść Dom to miejsce ciepłe, otwarte i sprzyjające relacjom. To przestrzeń, która zaprasza do tworzenia nowych wspomnień i daje poczucie, że nikt nie jest tu sam. Wykorzystując maksymalnie potencjał działki oraz naturalne zalesienie jej części wschodniej, zaprojektowano przestrzeń opartą na podziale na strefę cichą oraz strefę aktywną. Codzienne życie domu pomocy społecznej koncentruje się w dziedzińcu wydzielonym przez układ budynków. To tutaj powstają relacje, toczy się proste, domowe życie oraz tworzone są warunki do rozwijania indywidualnych pasji i zainteresowań każdego z mieszkańców.